1. Accueil
  2. > Acheter
  3. > Bureaux
  4. > Pays de la Loire
  5. > Maine-et-Loire
  6. > Angers
  7. > Bureau à vendre à Angers (49100)
Voir la galerie
Voir la galerie
Voir la galerie
Voir la galerie
Voir la galerie
5 photos

Bureau à vendre Angers - 49100

Voir sur la carte

299 500 €

Honoraires à la charge de l'acquéreur

  • 134,57 m²
  • DPE : G
Réserver une visite

Caractéristiques

Détail des conditions

  • Charges de copropriété : 164,75 €/mois
  • Bien en copropriété
  • 649 lots dans la copropriété
  • Année de construction : 1962
  • Taxe foncière : 2 226 €

Description du bien

  • 134,57 m² de surface habitable
  • Surface commerciale : 134 m²
  • Etage n°0

Description

Local commercial Angers

IMMO DE FRANCE OUEST VOUS PROPOSE EN EXCLUSIVITE :
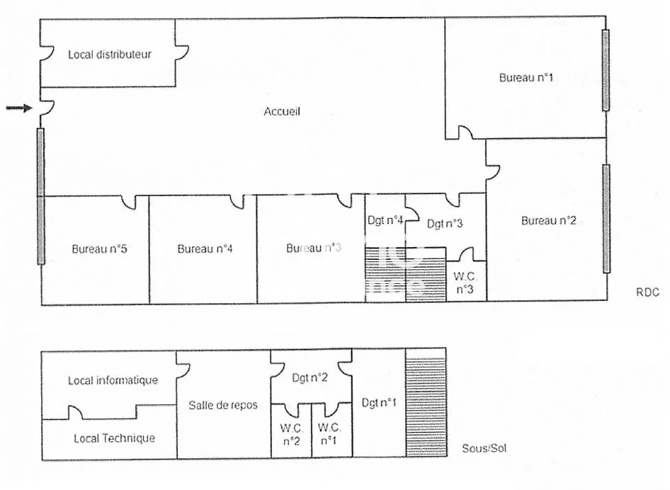
Situé dans le centre ville d'Angers, boulevard Saint Michel, au pied du tramway et des commerces, local commercial d'une superficie totale de 133 m², répartit sur deux niveaux :

- Rez-de-chaussée : vaste espace d'accueil de 45 m², 5 bureaux, wc et local.
- Sous-sol : dégagement, cuisine, local technique.
Excellent état général, vitrine en verre sécurité de 6m avec accès PMR.

Ce local commercial bénéficie d'un emplacement stratégique offrant visibilité et accessibilité. Ideal pour une activité de bureau commercial (assurance, architecte...) ou pour toute profession libérale.

Libre de locataire le 1er janvier 2026.
Les informations sur les risques auxquels ce bien est exposé sont disponibles sur le site Géorisques : www. georisques. gouv. fr

Réf.: 19135MP

Les informations sur les risques auxquels ce bien est exposé sont disponibles sur le site Géorisques : https://www.georisques.gouv.fr.

Performance énergétique globale

Dépenses énergétiques (DPE)

  • A
  • B
  • C
  • D
  • E
  • F
  • G

    541 kWh/m²/an

Logement à consommation énergétique excessive

Émissions de gaz

  • A
  • B
  • C

    15 CO2/m²/an

  • D
  • E
  • F
  • G

Date de réalisation du diagnostic : 19/09/2025

Année(s) d’indice des prix : non renseignée

Localisation

Réserver une visite

Faites-nous part de votre projet

N'hésitez pas à nous contacter, nos conseillers sont disponibles pour vous fournir de plus amples renseignements.

Immo de France Ouest - Angers

14 PLACE PIERRE MENDES-FRANCE
49100 Angers

Nos annonces à proximité

Bureau

Angers (49100)

  • 120 m²

367 500 €

Accéder à l'annonce

Bureau

Meslay-du-Maine (53170)

  • 46 m²
  • DPE : E

70 000 €

Accéder à l'annonce

Bureau

Basse-Goulaine (44115)

  • 67 m²

294 500 €

Accéder à l'annonce

Bureau

Sainte-Luce-sur-Loire (44980)

  • 114,6 m²
  • DPE : A

344 000 €

Accéder à l'annonce

Bureau

Sainte-Luce-sur-Loire (44980)

  • 114,6 m²
  • DPE : A

344 000 €

Accéder à l'annonce

Bureau

Nantes (44000)

1 200 000 €

Accéder à l'annonce

Bureau

Nantes (44000)

1 200 000 €

Accéder à l'annonce

Bureau

Nantes (44000)

  • 65,9 m²
  • 3 p.

140 500 €

Accéder à l'annonce

Bureau

Nantes (44100)

295 000 €

Accéder à l'annonce